37 Burscough Street, Ormskirk

Under offer £9,000 Per Annum

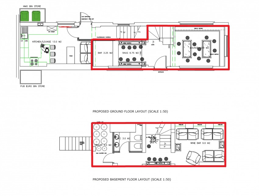
  • Ground Floor Retail Area with W.C's, Cellar with ancillary storage to Basement
  • Previously Consented for Micro Pub/Wine Bar Use
  • Most recently operated as a tattoo studio
  • Alternative Retail Uses also Considered Subject to Usual Consents
  • Available By Way Of A Minimum 3 Year Lease - References And Deposit Will Be Required
  • No VAT On Rental
  • Business Rates Exempt (subject to meeting necessary criteria)
  • Available from April 2026 due to relocation

The property comprises of part ground floor and basement most recently operated as a tattoo studio.
The separately accessed upper floors have been converted into student/HMO accommodation.
The ground floor provides an open plan area to Burscough Street with glazing to three elevations.
The basement provide w.c.'s, and additional storage accommodation.
Planning has been previously granted for a Micro Pub/Wine Bar however the premises are equally suitable for retail or professional office use.

Similar Property