Glenbourne House, 63 Burscough Street, Ormskirk, Lancashire, L39

Available £9,000 - £12,000 Per Annum

  • Well Appointed Upper Floor Offices
  • Open plan floors
  • Centrally Located Close to All Town Centre Amenities
  • Parking Available
  • Alternative Uses Considered
  • Available by way of a new lease
  • No VAT on rental or service charge
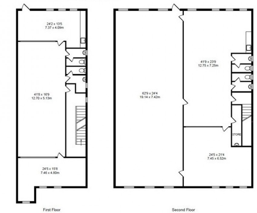
  • First floor apporx 1,241 sq ft NIA
  • Second Floor 2,790 sq ft
  • Available individually or combined

The first and second floor offices are accessed via a shared entrance from Burscough Street, leading to a well-maintained communal stairwell.

The first floor provides predominantly open plan office accommodation with good natural light, supplemented by ancillary areas and W.C. facilities. The layout lends itself to a range of occupiers, with flexibility for further partitioning if required.

The second floor offers a substantial open plan office environment extending across the full depth of the building, benefitting from a series of dormer windows to the front elevation and additional windows to the rear, providing excellent levels of natural light. The floor also incorporates W.C. facilities and a dedicated store.

The accommodation is suitable on a floor by floor basis or combined.

Heating is provided via a high efficiency combination boiler serving steel panel radiators. The office areas benefit from LG7 compliant surface mounted lighting, perimeter power and data trunking, and an addressable fire alarm system with L1 coverage throughout the building.

4 car parking spaces are provided in total, with 2 spaces being proposed for each floor. The property is however adjacent to WLBC pay and display car park off Burscough Street.

Similar Properties