102 Station Road,, Ainsdale, PR8

Available £12,950 Per Annum

  • Well positioned on Station Road, Ainsdale Village
  • Self-contained ground floor premises extending to approx. 685 sq ft NIA
  • Suitable for a wide range of Class E uses
  • Established and busy retail / leisure location
  • New lease available - minimum 3 year term
  • EPC Rating B (valid until 2033)

The premises comprise a prominently positioned and well-configured ground floor commercial unit, most recently utilised as a dog grooming salon. The property benefits from a strong frontage onto Station Road and forms part of an established and active retail parade.

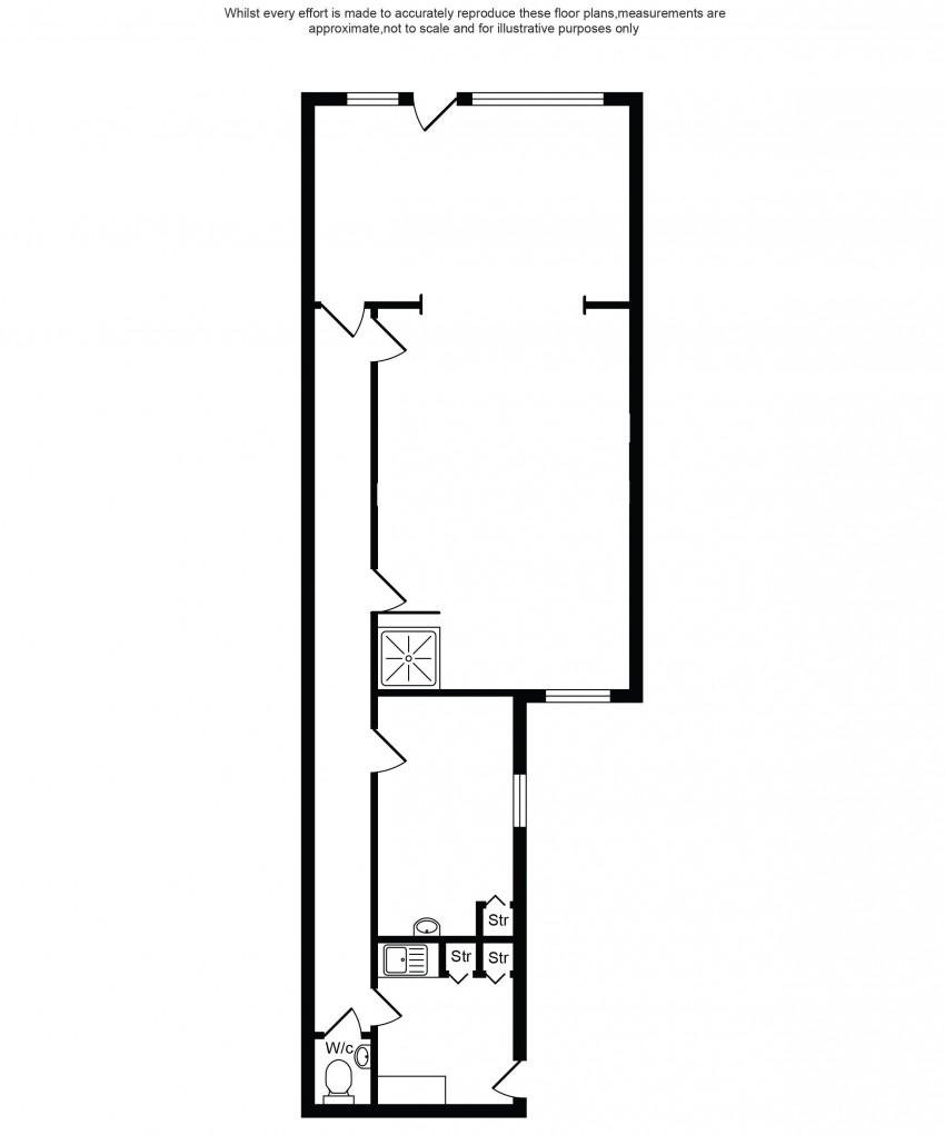
Internally, the accommodation provides a front retail/reception area together with three additional rooms suitable for treatment, office or storage use. To the rear, there are kitchen facilities along with WC and shower accommodation. The unit is self-contained and offers a flexible layout capable of accommodating a variety of occupiers.

The property will be presented in a clean and tidy condition, with minor improvement works including replacement of a blown glazing unit to be undertaken. New electrical and gas safety certification will also be provided, allowing an incoming tenant to take occupation with minimal initial outlay while retaining the ability to fit out to their own specification.

Similar Properties