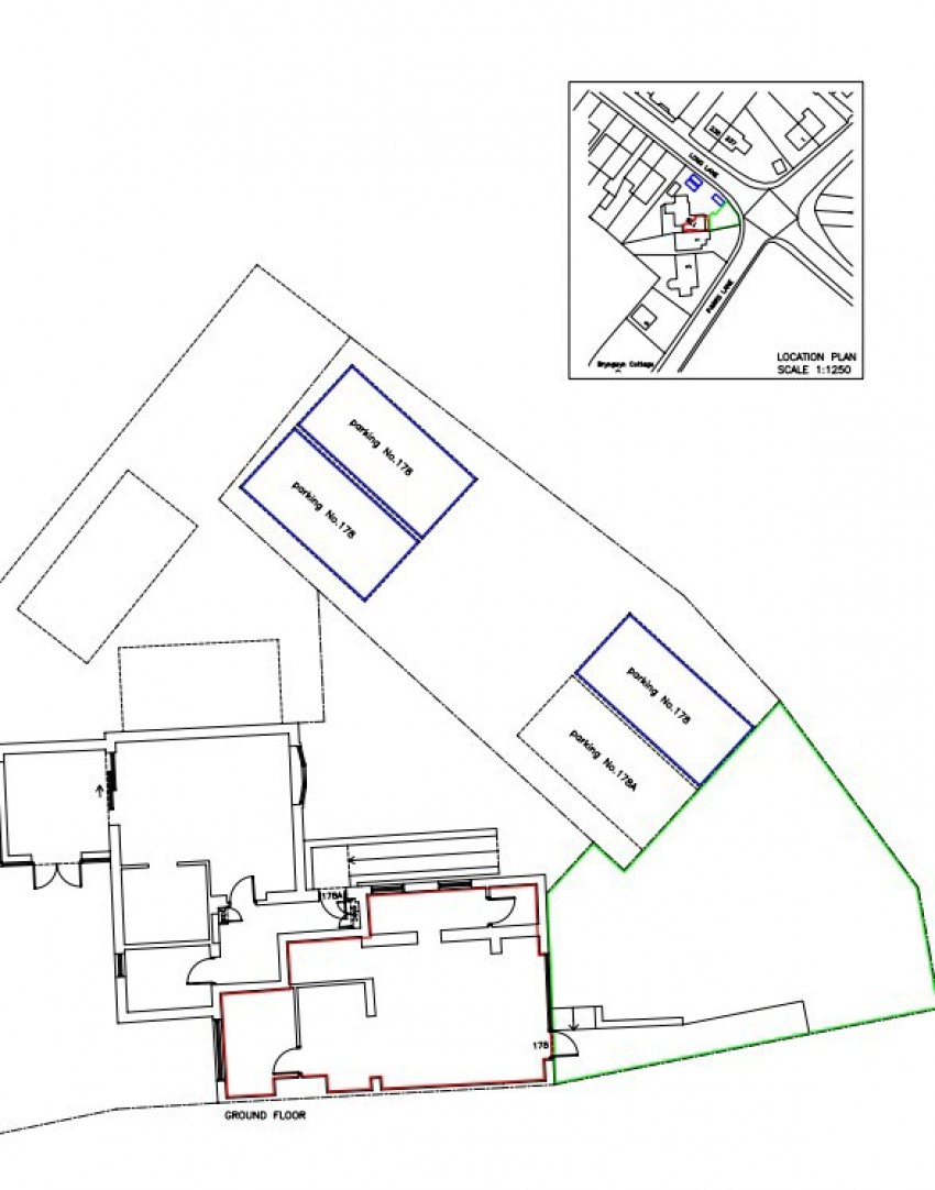
178 Long Lane, Aughton, Ormskirk, Lancashire, L39

Available £109,950 Guide Price

  • Fully let ground floor retail investment
  • Tenant unaffected by the sale and have been in occupation since May 2018
  • Current passing rent £8,068 per annum
  • Rent rising to £8,615 per annum
  • Fixed 2.5% annual rent increases
  • 5 year lease from May 2023
  • Approx 510 sq ft (47.4 sq m)
  • Three allocated parking spaces
  • Freehold interest included
  • Residential ground rent income

Ground floor retail unit arranged as a hair and beauty salon.
Accommodation includes:
Main salon area
Treatment room / office
Store
Modern salon fit-out
Prominent glazed frontage
Suspended ceiling with LED lighting
Timber effect flooring
Kitchen and WC facilities
Rear access

Tenancy: The property is let to an established hair dressing salon. Trading as Blush Hair & Extensions.

Lease Terms
Term: 5 years from 1 May 2023
Passing rent: £672 per calendar month (£8,068 per annum)
Rent review: Fixed 2.5% annual increases

Rent Schedule
Period Annual Rent
May 2023 - Apr 2024 £7,680
May 2024 - Apr 2025 £7,872
May 2025 - Apr 2026 £8,064
May 2026 - Apr 2027 £8,268
May 2027 - Apr 2028 £8,472

Figures as detailed in the occupational lease a copy of which is available on upon request.

Tenure: Long Leasehold Retail Interest together with Freehold Interest in the Building.

Residential Ground Rents: The flats have been sold off on long leasehold titles, however the freehold includes Ground rent income:
Flat 178a: £150 per annum
Flat 178b: 999 year lease at peppercorn rent

Building Insurance: Current building insurance: £591 per annum Retail contribution: One third

Investment Summary
Current passing rent: £8,068 per annum