134 Cambridge Road, Churchtown, Southport

Available £11,400 Per Annum

  • Ground Floor Retail Unit
  • Rental - £11,400 Per Annum Exclusive Of All Other Outgoings
  • Situated To Churchtown Village Within A Popular Retail Parade
  • Available By Way Of A New Lease On Terms To Be Agreed

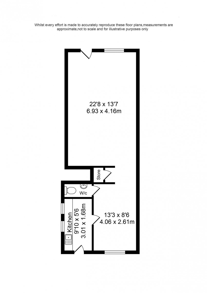
The self contained retail unit comprises of a ground floor open plan retail unit, with glazed shop front and adjacent timber pedestrian door. Internally, there is an open plan sales retail area with storeroom, kitchenette and WC to the rear. There is also an enclosed rear yard. Please note takeaway uses will be prohibited.

The property is situated within Churchtown Village, on the easterly side of Cambridge Road, close to its junction with Marshside Road and Preston New Road. Nearby occupiers include Waterfield Bakers, Tesco Express, Co-op, Spar and Boots, in addition to various other local retailers.

Similar Properties