Former Club Premises, West Street & Waverley Street, Southport, Merseyside, PR8

Under offer £250,000 Guide Price

  • Vacant Town Centre Commercial Opportunity - Suitable for Alternative Uses / Conversion / Redevelopment (STP)
  • Prominent town centre corner position
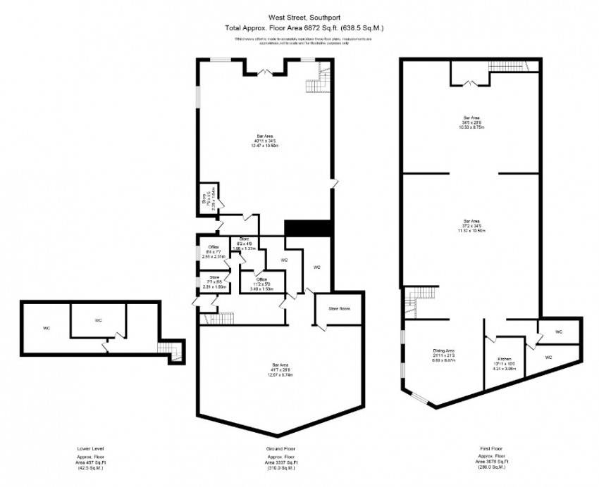
  • Former nightclub complex extending to approx. 6,800 sq ft GIA
  • Arranged over lower ground, ground and first floors
  • Access from West Street, Waverley Street & Hulme Street
  • Now fully vacant and stripped back to shell condition
  • Suitable for a variety of alternative uses (STP)
  • Residential conversion, mixed-use or redevelopment potential (STP)
  • Offered with full vacant possession

The property historically comprised three separate nightclub/bar premises arranged over ground and first floors.

The buildings are partially interconnected and form a substantial corner block extending to approximately 6,800 sq ft (GIA).

The property is now fully vacant and has been stripped out internally. Much of the former nightclub fit-out has been removed, leaving predominantly open-plan accommodation in shell condition.

The configuration includes:
Lower level accommodation
Ground floor areas with multiple access points
First floor space suitable for reconfiguration
Former WC and service areas

The property now presents as a refurbishment, reconfiguration or redevelopment opportunity.

Similar Properties