269 Lord Street, Southport, Southport, Merseyside, PR8

Available £995,000 Guide Price

  • Landmark Grade II Listed building in a highly prominent position on Southport's iconic Lord Street
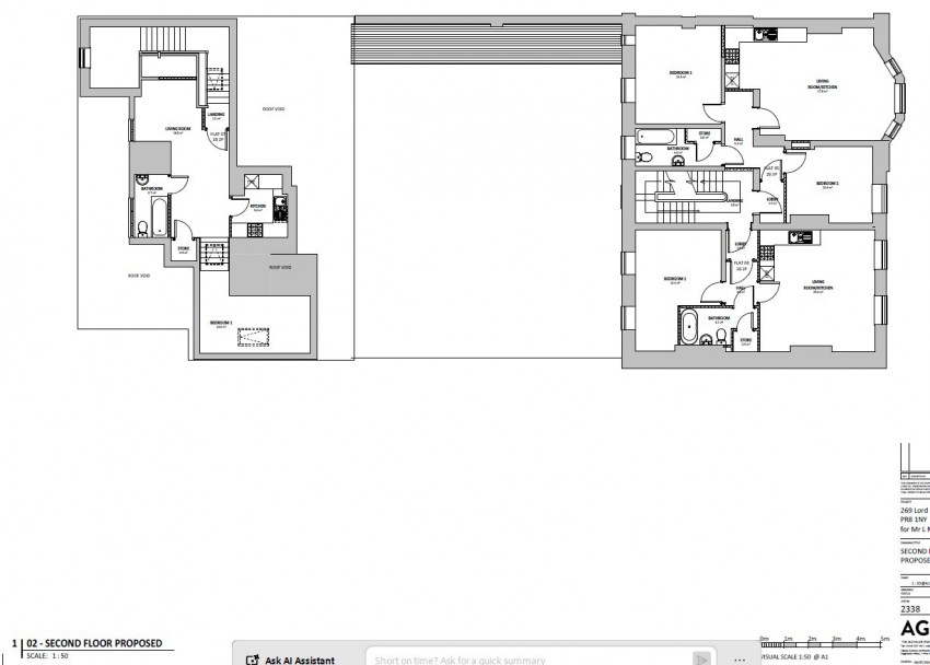
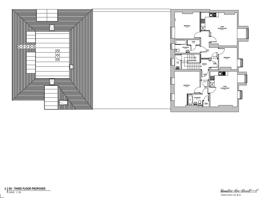
  • Full Planning Permission and Listed Building Consent granted for residential conversion of upper floors
  • Approved scheme for 9 self-contained apartments (1 & 2 bedroom mix)
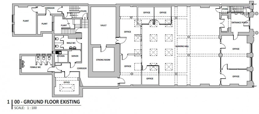
  • Substantial ground floor commercial accommodation retained (Class E compatible)
  • Residential-led mixed-use development with separate and secure access
  • Secure rear car parking providing one space per apartment
  • Rare opportunity for developers or owner-occupiers seeking a prime town centre asset with planning certainty

The property comprises an imposing and substantial Grade II Listed former banking building, occupying a prime and highly prominent position on Lord Street. The building is offered for sale freehold and as a whole, presenting a rare and well-considered residential-led development opportunity with planning certainty.

Planning Permission and Listed Building Consent have been granted by Sefton Metropolitan Borough Council for the conversion of the first, second and third floors into residential use, while retaining a large and flexible ground floor commercial unit.

The approved scheme has been carefully designed to respect the historic and architectural significance of the building. External alterations are minimal, with the emphasis placed on the sensitive reuse of the upper floors, retention of key architectural features and a clear functional separation between commercial and residential elements.

This opportunity will appeal to:

Residential developers seeking a consented town centre scheme
Mixed-use specialists
Owner-occupiers wishing to trade from the ground floor while developing the upper floors

Similar Property