17 Wesley Street, Southport, Merseyside, PR8

Available £110,000 for the Long Leasehold

  • Self contained Bar premises
  • Refurbished interior with OSB urban/utilitarian feature walls and exposed steel beams
  • Prominent position on vibrant Wesley Street, known as "the village in the town".
  • Versatile layout suitable for bar, café, micro-pub, dessert, juice or coffee concepts.
  • Available to lease or purchase (long leasehold approx. 999 years).

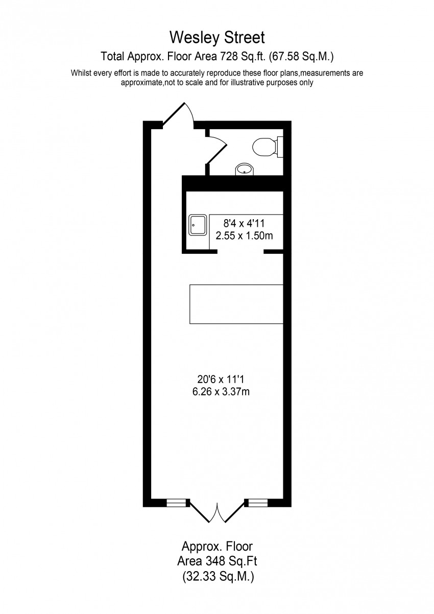
The premises comprise a self-contained ground floor bar unit with an attractive frontage and recently refurbished interior. The accommodation features OSB board wall finishes, exposed steel ceiling beams and sections of double-height ceiling, creating a distinctive open trading environment.

A fitted bar servery is centrally positioned, supported by a rear preparation and storage room together with WC facilities. The efficient layout is suited to a variety of beverage-led uses including bar, café, micro-pub, dessert, juice or coffee-led concepts.

Similar Properties