The Paddock, St Michael Road, Aughton, Ormskirk, West Lancashire, L39

Available £875,000 Guide Price

  • Full planning permission for a prestigious, architect-designed luxury residence
  • Extensive 3.13 acre site - exceptionally rare opportunity for paddock, equestrian or lifestyle land use
  • Prime Aughton location within one of West Lancashire's most desirable residential enclaves
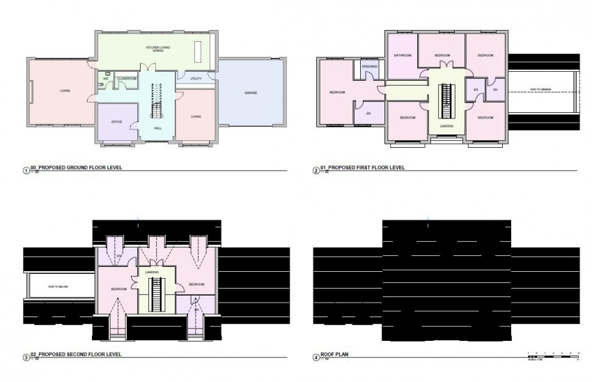
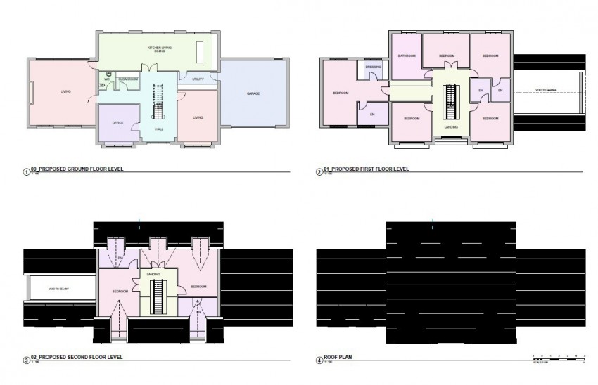
  • Very large, approved seven-bedroom dwelling - approx. 6,472 sq ft GIA (including garage)
  • Generous multi-level accommodation ideal for luxury living and entertaining
  • Mature natural screening and exceptional privacy with dedicated entrance of St Michaels Road
  • Freehold tenure with Land Registry plans available

A rare and exceptional offering, The Paddock provides the opportunity to create a landmark residence in one of West Lancashire's most prestigious residential markets. The gently enclosed total 3.13-acre site is framed by mature landscaping and high-quality neighbouring homes, delivering an enviable blend of privacy, prestige and natural beauty.

Full planning permission has been granted for a substantial architect-designed detached dwelling, replacing existing buildings on the site. The approved design masterfully combines traditional West Lancashire rural character with refined contemporary detailing, ensuring the new home sits harmoniously within the existing street scene while delivering exceptional modern comfort and scale.

The approved seven bedroom dwelling is exceptionally generous in size, with a total Gross Internal Area (GIA) of approximately 6,472 sq ft-including the integral garage-as confirmed by the approved drawings. Very few new-build opportunities in Aughton offer accommodation of this magnitude, particularly when paired with a 3.13-acre plot suitable for equestrian or lifestyle use.

The home is designed over 2.5 storeys, incorporating 1.5-storey and single-storey elements to create an attractive and varied roofscape. Premium materials include red-brown facing brickwork, dark grey roof tiles and anthracite framed windows and doors, delivering a refined and cohesive architectural aesthetic.

Internally, the layout offers exceptional space and versatility. The ground floor provides expansive open-plan living areas, two further reception rooms, a dedicated home office, utility room, cloakroom and an integral garage supporting both comfortable family living and large-scale entertaining. The upper floors provide multiple double bedrooms, en-suite facilities and dressing areas, delivering a boutique-level standard of accommodation.

Externally, the scale of the site offers clear and rare potential for equestrian facilities, paddocks, grazing,

smallholding activity, or extensive landscaped gardens and recreation areas (subject to consents). Mature screening provides excellent privacy while maintaining the site's semi-rural charm.

In all, The Paddock represents an unparalleled opportunity to deliver a bespoke, high-end family home with significant private land-a combination seldom available in Aughton.

Similar Properties