Cambridge Arcade, Unit 20 Cambridge Walks, , Cambridge Walks, Southport, Southport, Merseyside, PR8

Available £25,000 Per Annum

  • Prominent restaurant / bar premises arranged over ground and first floors
  • Fully fitted commercial kitchen and dining environment - ready to trade
  • Recognised and established restaurant location within Cambridge Arcade
  • Fixtures, fittings and catering equipment remain the landlord's property but are available for the tenant's use (to be listed on inventory)
  • No ingoing premium requested - opportunity for an operator to significantly reduce set-up costs
  • Full repairing basis via service charge recovery; service charge capped at 20% of rent
  • Occupiers may qualify for Retail, Hospitality & Leisure Business Rates Relief in Southport (Sefton MBC) - up to 40% relief for 2025-26, subject to meeting the necessary criteria (sefton.gov.uk)

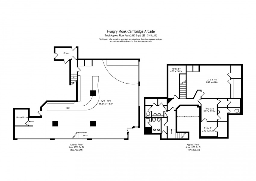
The Former Hungry Monk Ale House & Kitchen provides an attractive and characterful restaurant environment arranged over ground and first floors, combining period features with a quality contemporary fit-out.

The ground floor offers the principal dining and bar area, featuring timber and stone flooring, a solid wood bar counter, feature lighting, eclectic furnishings, and a mix of seating zones. A small mezzanine overlooks part of the restaurant and could serve as additional seating or display space.

The first floor accommodates the main commercial kitchen, prep and dry-store areas, and customer WCs, all served by a dumb waiter connecting directly to the bar and dining area below.

Fixtures, fittings, and catering equipment (including furniture, appliances, fridges, and coffee machine) will remain in situ and are the landlord's property, available for the tenant's use under licence. These items will be detailed on an itemised inventory. The tenant will accept them "as seen" and will not be obliged to replace or renew any items that reach the end of their economic life. The landlord will not be responsible for PAT testing or servicing; such maintenance will be the tenant's responsibility.

Please refer to the accompanying floor plan for indicative layout and spatial arrangement.

Similar Properties