1-5b Hoghton Street, Southport, Southport, Merseyside, PR9

Available £515,000 Guide Price

  • Four self-contained retail units fronting Hoghton Street in Southport town centre
  • Fully let investment producing £45,540 per annum
  • Gross Initial Yield: approx. 8.84%
  • Freehold title - tenants wholly unaffected by the sale
  • Attractive and sustainable income stream from diverse local occupiers
  • Prominent position close to Southport's professional, retail, and leisure core
  • Ideal for SIPP or SASS pension investors seeking secure, asset-backed income
  • Small unit sizes - affordable rents ensuring consistent tenant demand
  • Potential for small business rates relief on most units (subject to qualification)
  • No VAT payable on the purchase price

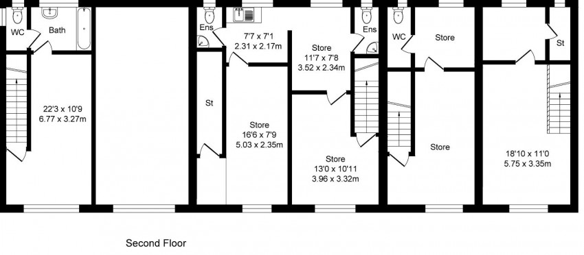
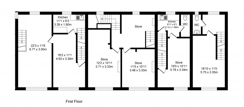
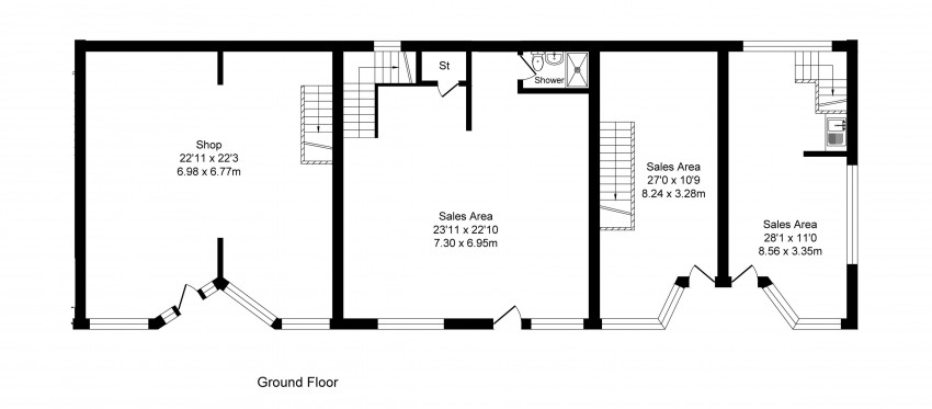
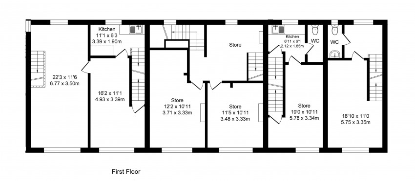
A well-presented terrace of traditional brick-built retail premises, arranged as four self-contained units, each with accommodation over ground, first, and second floors, and with individual access from Hoghton Street.

The property has been well maintained and offers secure, diversified rental income across four separate tenancies. The modest rental levels and compact floorplates make the units affordable for a wide range of local traders, providing sustainable occupancy and reduced void risk.All units are supplied with electricity only (no gas supply to the property) and have up-to-date electrical safety certification. The investment benefits from low management intensity, and most occupiers are likely to qualify for small business rates relief, further supporting long-term tenant stability.

Overall, this is a well-balanced multi let retail investment, ideally suited to private investors and SIPP/SASS pension purchasers seeking steady, asset-backed returns in an affordable price bracket.

Terms: 1-3 Hoghton Street, Southport
Tenant: Balendu Bikham Shah & Bina Shah t/a Smithies Newsagents
Lease: 10 year lease from May 2017
Rent: £15,390 per annum
3B Hoghton Street, Southport
Tenant: Thi Ha Vi Nguyen & Trang Nhung Tran t/a Nail Bar
Lease: 10 year lease from July 2023
Rent: £13,750 per annum
5a Hoghton Street, Southport
Tenant: Alan Taylor t/a Arcade Sports
Lease: 3 year lease from September 2024
Rent: £8.200 per annum
5b Hoghton Street, Southport
Tenant - Blend (Merseyside) Ltd
Lease - 3 year lease
Rent: £8,200 per annum

Similar Properties