Unit 1, The Cloisters, Corporation Street, Southport, Merseyside, PR8

Available £35,000 Per Annum

  • Central Southport location off Chapel Street & near Lord Street
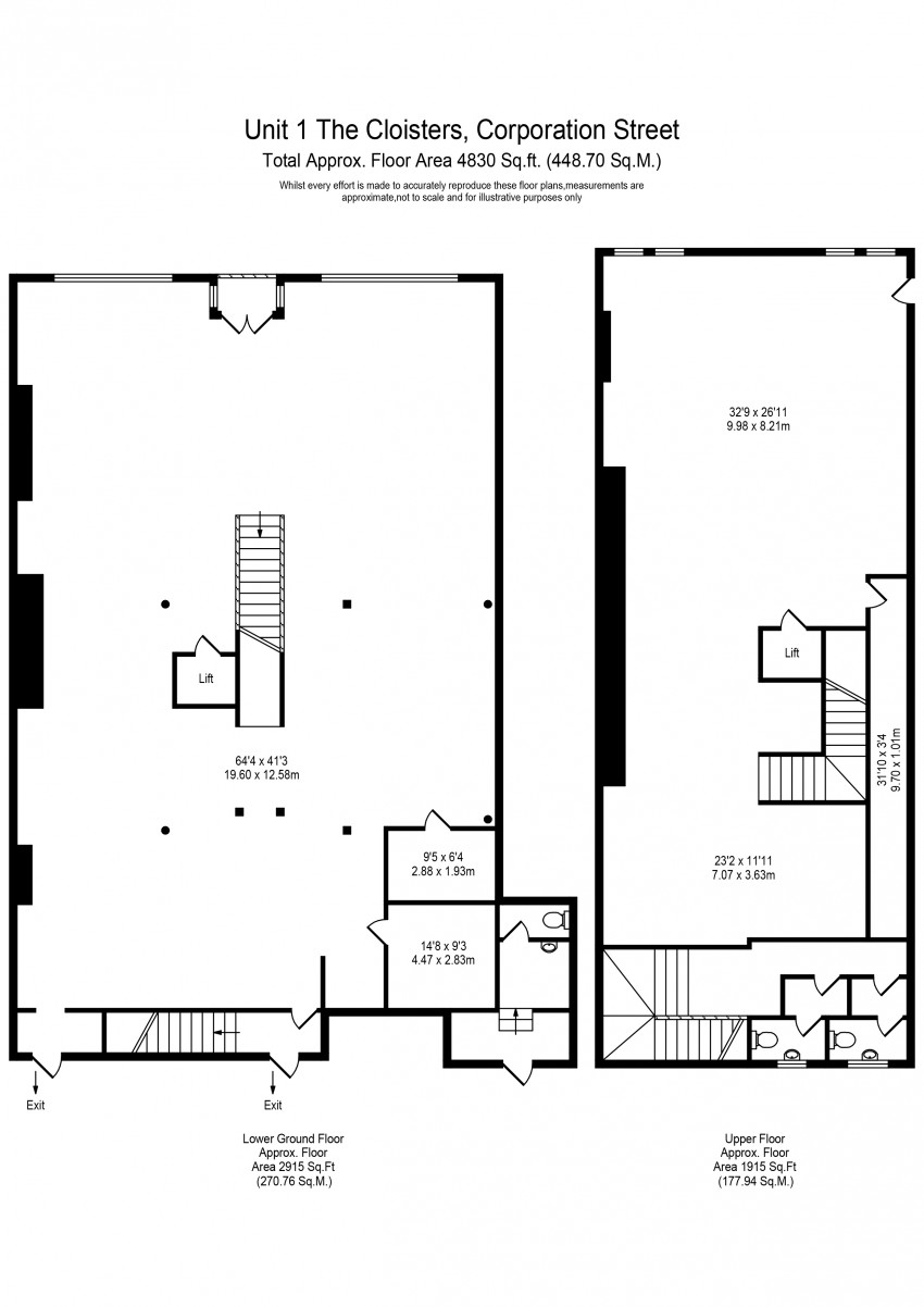
  • Approx. 4,830 sq.ft. over two floors
  • Grade II listed with unique period features
  • Flexible use: retail, hospitality, offices, more
  • Shell condition, ready for tenant fit out
  • Lift access, high ceilings, and natural light

This impressive, double-height former retail unit is now offered To Let and presents a rare opportunity to occupy a building of distinctive architectural character and flexible commercial potential. Having been stripped back to a shell condition, the premises are ready for tenant fit-out and are ideally suited to a variety of uses, including but not limited to:

Retail Showroom / Flagship Store
Café, Bar, or Restaurant
Leisure Facility or Boutique Gym
Art Gallery or Exhibition Space
Wellness or Health Centre (e.g. clinic, beauty, yoga, pilates)
Professional Offices or Co-Working Hub
Creative Studios or Education/Training Centre

Arranged over two main floors, with a Gross Internal Area (GIA) of approx. 4,830 sq.ft. (448.70 sq.m.), the building combines generous open-plan spaces with period detailing, creating a versatile and memorable environment for businesses seeking to stand out.

Property Features: Prominent Grade II listed façade with gothic-style stone archway.

Full-height display windows with roller shutters for security.

Lift access to both floors.

Unique architectural features including stained glass, columns, and exposed brickwork.

Exposed services to ceiling for ease of fit-out and design flexibility.

Excellent scope for branding and signage on both ground and first floor frontages.

Originally constructed to house Christ Church Schools, this heritage property retains its ecclesiastical character and grandeur, making it a landmark presence on Corporation Street. A commemorative stone plaque at the entrance attests to its historical roots. The building was subsequently adapted for retail use and most recently occupied by a sports outlet, with potential now to serve a new commercial chapter.

Similar Properties