Bescar Methodist Church, 10 Bescar Lane, Scarisbrick, Southport, L40

Available £350,000 Guide Price

  • Best and Final Offers to be received by midday Wednesday 15th April 2026.
  • Vacant detached church extending to approximately 3,665 square feet on a total site area of 0.521 acres - subject to confirmation with the deeds.
  • Redevelopment potential - Preapplication response received with regard to two replacement detached dwellings
  • Scope for conversion to residential, redevelopment or indeed alternative uses, subject to the necessary consents.
  • Semi-rural position within the village of Scarisbrick.
  • Attractive and rare opportunity.

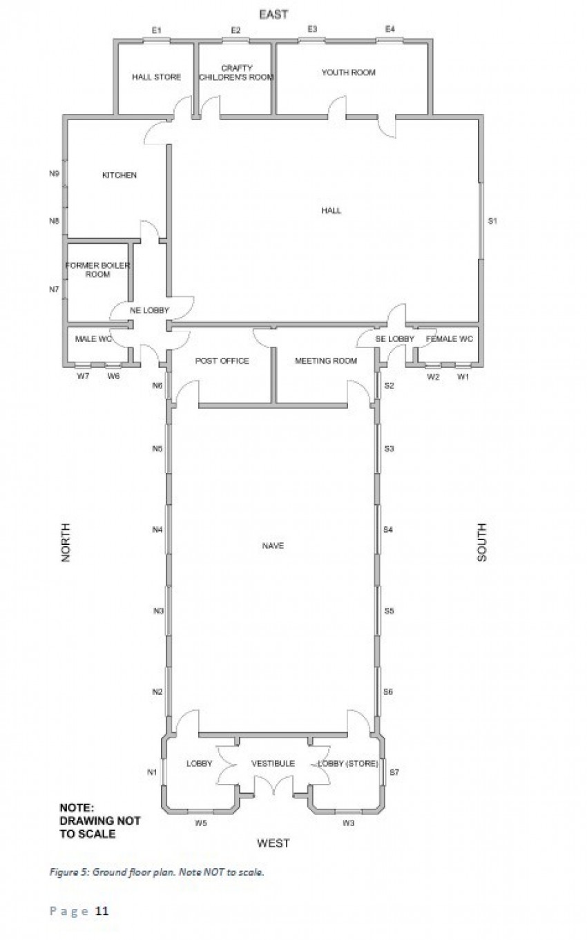
We understand the church was built in 1924 and is not Grade 2 Listed or in a Conservation Area. Overall, the property is formed in a T-shape, with an entrance vestibule and two alternate lobbies to the west elevation, leading into the open plan nave area, to the rear of which there is a meeting room and a former area used by the Post Office.

To the north east lobby, there is a male WC, former boiler room and kitchen, to the south east lobby, there is a female WC. Both lobbies connect into the rear open plan hall, off which there is a youth room, children's craft room and storage area. The walls are of brick construction to a garden wall bond, with a pitch slate and partial flat roof above the entrance vestiblue. Within the curtilage of the property, there are a number of substantial and established trees, some of which we understand are subject to Tree Preservation Orders.

Best Offer Deadline: We request all offers are received by no later than midday Wednesday 15th April. The offer should provide appropriate proof of cash funds or funding, qualify if any conditions are attached, solicitor details and proposed timing to complete the purchase. Please note the vendor is under no obiligation to accept the highest or indeed any offer from this informal tender exercise

Similar Properties