132 Lord Street, Southport, Merseyside

Under offer £375,000 for the Freehold

  • Constructed over ground, first, second and third floors plus basement.
  • Over 5,000 square feet NIA.
  • Offered with vacant possession due to relocation of the existing tenant.
  • Ground floor access from Post Office Avenue and Lord Street.
  • Upper floors providing office accommodation requiring in part modernisation and repair.
  • Suitable for ongoing office use or indeed residential conversion, subject to the necessary consents.
  • Lord Street Conservation Area.
  • No VAT on purchase price.

An architecturally impressive property with ornate red sandstone detailing to the Lord Street elevation, which is constructed over ground, first, second and third floors, plus basement areas.

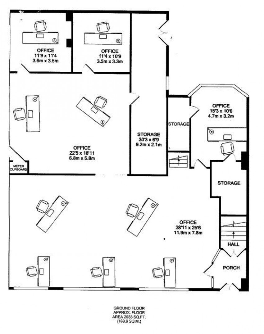
Available due to the relocation of the existing tenant, the ground floor has an entrance both off Lord Street and Post Office Avenue, and provides primarily open plan office areas, together with back-of-house storage and the internal rear courtyard, which can be accessed off Post Office Avenue.

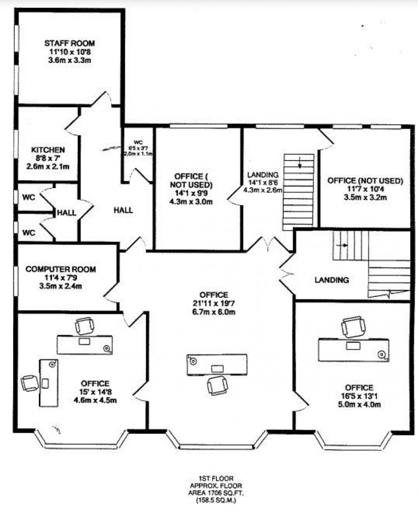
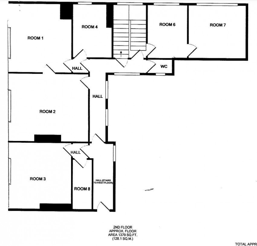
The entrance off Lord Street faces directly onto the stairwell (currently sealed off), to the upper floors, there is also a secondary staircase from the ground floor retail unit, which lead to the first floor suite of offices, which comprise a number of private offices, together with open plan areas, staff room, IT/server facilities, kitchen, WCs and stairs to the second and third floors. The second and third floors have not been occupied for many years and comprise a number of office and storage rooms, together with WC facilities and kitchen. The upper floors would be suitable for refurbishment for ongoing office use or for conversion into residential accommodation, subject to the necessary consents.

The property is situated within the Lord Street Conservation Area but not listed, and we feel presents an attractive and prominent mixed use opportunity for investors, developers or indeed owner/occupiers.

Similar Properties