First and Second Floor, 118 Lord Street, Southport, Merseyside

Available £12,950 Per Annum

  • 64 Seat Restaurant over First and Second Floors overlooking Lord Street
  • Prominent position to Lord Street, Southport Town Centre
  • Available by way of a new lease
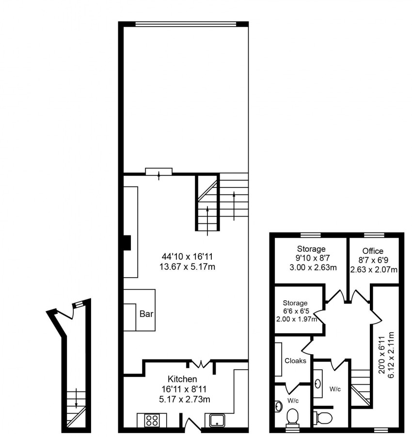
  • Approximately 911 sq ft NIA
  • References and Deposit required
  • Ground Floor Unit available by way of separate negotiation

First and Second Floor Former Restaurant and Bar Premises.

The property is accessed from a dedicated entranceway off Lord Street leading to the primarily open plan first floor for dining and kitchen facilities, together with WC and storage accommodation to the second floor.

This property previously traded as steak restaurant and includes air conditioning system, extraction facilities, kitchen equipment.

A new lease would be proposed for a term to be agreed at a rental of £12,950 per annum exclusive of other outgoings, subject to appropriate references and landlord's consent.

Fixtures and fittings could be available by way of separate negotiation.

Similar Properties