Unit 2, 135 - 139 New Court Way, Ormskirk, Lancashire

Available £30,000 Per Annum

  • Self contained employment unit - currently configured as two open plan floors.
  • Premises could be readily adapted for alternative employment uses such as Storage, Workshop leisure use, or Trade Counter.
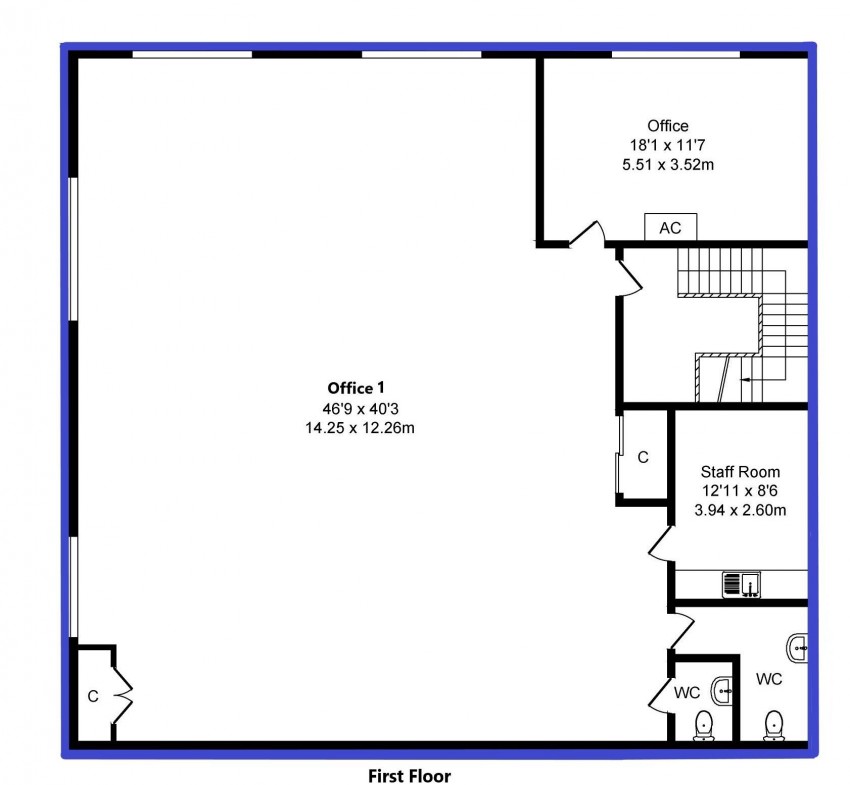
  • Approximately 4,360 sq ft over ground and first floor.
  • Roller shutter door to front elevation installed.
  • Available by way of New Lease.
  • Established Employment location close to Ormskirk Town Centre.
  • Landlord could undertake alterations subject to terms agreed.

Currently configured as two primarily open plan areas and over ground and first floors, the accommodation could be readily adapted for alternative employment uses such as storage, leisure, workshop, trade counter etc. Please note, a roller shutter door has been installed to the front elevation behind the existing glazing, which could be removed if required.

The ground floor provides predominately open plan offices with two private offices to the perimeter in addition to staff room and w.c.

The first floor provides a further open plan area together with a meeting room, staff room and male and female w.c.'s.

Similar Property